
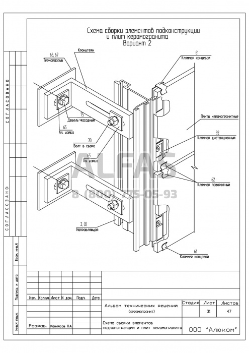
Alucom KG – алюминиевая подоблицовочная конструкция, выполненная из сплава А6063 Т6, обеспечиваемый диапазон регулировки относа от стены от 100 мм до 320мм. В качестве облицовки используются плиты из керамического гранита в диапазоне толщин 8-12мм. Крепление осуществляется открытым способом при помощи поворотного кляммера, изготовленного из нержавеющей стали 12Х18Н10Т.
Alucom KG можно использовать как в варианте с резиновыми уплотнителями, так и без них. В этом случае используется прижимной кляммер новой ОРИГИНАЛЬНОЙ КОНСТРУКЦИИ. Кляммеры могут, по желанию Заказчика, окрашиваться в цвет материала облицовки.
Особенность системы:
-
Надежность крепления всей конструкции за счет применения болтового соединения кронштейна и направляющей.
-
Быстрота сборки, обусловленная оригинальной конструкцией поворотного кляммера.
-
Концевые и поворотные кляммера устанавливаются в пазы вертикальной направляющей, что облегчает процесс монтажа и предотвращает перекос плиток.
-
Эстетическая привлекательность, характеризующаяся возможностью уменьшить швы между плитками до 4-6 мм.
-
Прижимной кляммер оригинальной конструкции позволяет не использовать в системе резиновые уплотнители.